Если стандартные модели не удовлетворяют вашим требованиям, вы можете заказать пластиковую купель на заказ по индивидуальным размерам и дизайну. Это позволяет создать уникальное изделие, идеально подходящее именно вам. Дополнительно предлагаем комплектацию изделия удобными аксессуарами: сидением, лестницей, крышкой, а также установку дополнительного оборудования для фильтрации, подсветки, дренажа и поддержания оптимальной температуры воды. Услуги нашей компании включают выезд мастера непосредственно к клиенту, что особенно актуально при установке купели в готовое помещение бани или сауны.
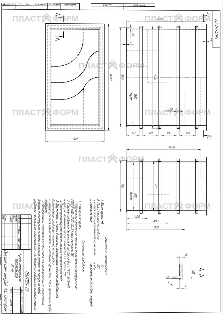
Чертежи изготовленных нами ранее купелей
![]() |
![]() |
![]() |
![]() |
Порядок заказа купели из пластика:
- Вы высылаете нам эскиз, либо чертеж купели нам по электронной почте, либо в любом месенджере;
- Наш конструкторский отдел совместно с технологами производят расчет изделия, сообщают Вам стоимость, сроки изготовления;
- При утверждении цены изделия составляется договор и выставляется счет на оплату;
- После поступления денежных средств, наши конструктора разрабатывают чертежи и согласовывают их с Вами, все чертежи заверяются печатью;
- После согласования чертежей обеими сторонами, мы приступаем к изготовлению изделия, срок изготовления в зависимости от сложности составляет от 1 до 14 рабочих дней.
![]() |
![]() |
![]() |
![]() |
![]() |
![]() |
![]() |
![]() |
![]() |
Изготовление купелей из полипропилена на объекте заказчика
Наш завод предлагает уникальную услугу — производство купелей из пластика непосредственно на территории заказчика. Это позволяет существенно сократить расходы на транспортировку крупногабаритных конструкций и обеспечивает максимальное удобство для вас.
|
|
![]() |
![]() |
![]() |
|
Почему выбирают купель из полипропилена?
Полипропилен обладает рядом преимуществ перед традиционными материалами:
- Прочность: Полипропилен устойчив к механическим повреждениям и воздействию агрессивных сред.
- Долговечность: Материал не подвержен коррозии и гниению, что обеспечивает длительный срок эксплуатации.
- Экологичность: Полипропилен безопасен для здоровья и окружающей среды.
- Простота ухода: Поверхность легко очищается от загрязнений.
Купить пластиковую купель у компании Пластформ это про удобство, надежность и качество
Компания Пластформ предлагает широкий ассортимент пластиковых купелей из полипропилена, изготовленных из современных материалов. Наши изделия отличаются долговечностью, надежностью и эстетичным внешним видом.
Преимущества покупки купели у Пластформ:
- Высокое качество материалов: Все наши купели изготовлены из прочных и экологически чистых материалов, таких как пищевой полипропилен.
- Индивидуальный подход: Мы предлагаем возможность изготовления купели по индивидуальному заказу, учитывая ваши пожелания относительно размеров, форм и комплектации.
- Широкий выбор моделей: В нашем каталоге представлены различные виды купелей, включая классические и современные дизайны.
- Профессиональная установка: Специалисты компании Пластформ готовы оказать помощь в монтаже купели на вашем участке.
- Доступные цены: Мы стремимся предложить нашим клиентам оптимальные решения по соотношению цена-качество.
Покупая купель у компании Пластформ, вы получаете надежный продукт, который прослужит долгие годы, радуя вас и ваших близких комфортом и уютом.



















